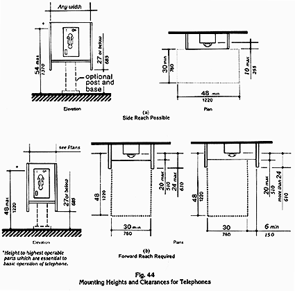
Figure 44
Mounting Height and Clearance for Telephones
Fig. 44(a) Side Reach Possible. If a parallel approach is provided at a telephone in an enclosure, the wing walls and shelf may extend beyond the face of the telephone a maximum of 10 inches (255 mm).
Fig. 44(b) Forward Reach Required. If a front approach is provided at a telephone with an enclosure, the shelf can extend beyond the face of the telephone a maximum of 20 inches (510 mm). A wing wall may extend beyond the face of the telephone a maximum of 24 inches (610 mm). If the wing wall extends more than 24 inches (610 mm) beyond the face of the telephone, an additional 6 inches (150 mm) in width of clear floor space shall be provided.