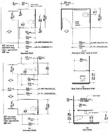
Diagrams of various toilet stall configurations
Figure 30
Toilet Stalls

Figure 30(a)
Figure 30(a-1)
Figure 30(b)
Figure 30(c)
Figure 30(d)
 

Back to ADAAG             List of Figures