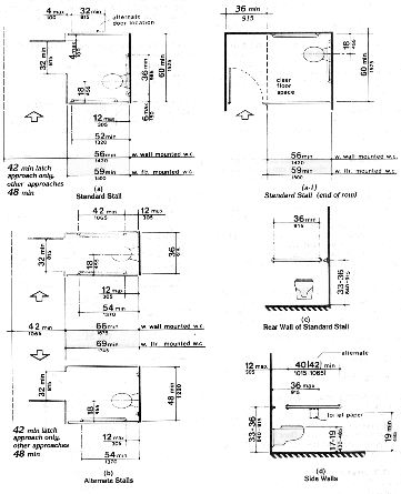
Figure 30
Toilet Stalls
Figure 30(a)
Figure 30(a-1)
Figure 30(b)
Figure 30(c)
Figure 30(d)
Back to ADAAG
List of Figures